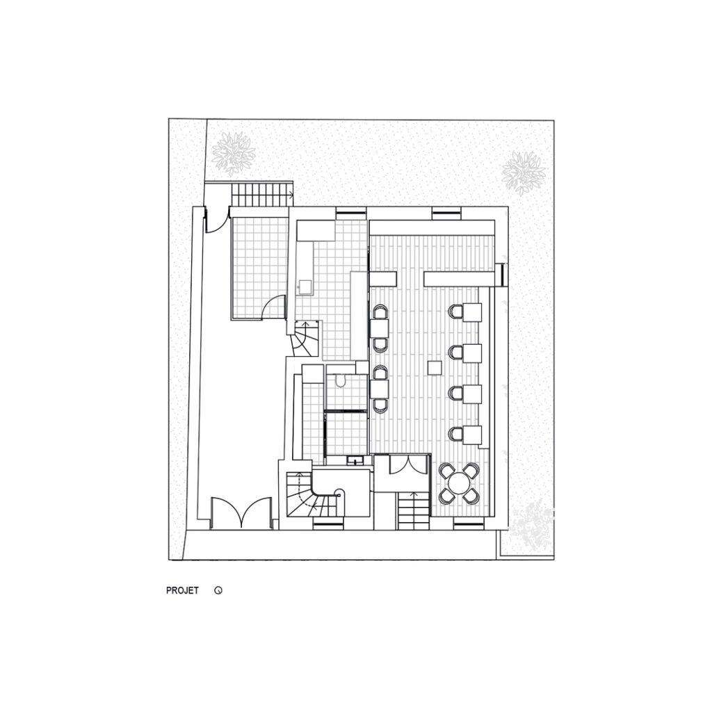
Contexte : Une vieille bâtisse datant de 1921, située en bordure du canal de l’Oust dans la vieille ville de Josselin, a été acquise dans le but de la transformer en un logement à l’étage et un salon de thé au rez-de-chaussée.
Intervention : Étant donné la surface limitée du rez-de-chaussée, l’objectif du projet est d’optimiser au maxi- mum l’agencement pour offrir une salle suffisamment spacieuse pour accueillir du public, tout en créant un espace de laboratoire confortable. Le grand châssis vitré de l’entrée a été remplacé afin de maximiser l’entrée de lumière naturelle. Les matériaux choisis visent également à apporter luminosité et chaleur, créant ainsi un environnement à la fois confortable et convivial.
